GA_KB2 – Aarau

Umsetzung Sofortmassnahmen Kantonsbibliothek

Auslöser für die baulichen Massnahmen war eine vorangegangene Bauwerksanalyse, die unter anderem gezeigt hatte, dass die gegebene Fluchtweg- und teilweise Arbeitsplatzsituation nicht zulässig ist. Daraufhin wurde, in Abstimmung mit verschiedenen Behörden, im Erdgeschoss des Magazinturmes ein zusätzlicher Fluchtwegausgang geplant und ausgeführt. Im gleichen Zusammenhang wurde die bis dato unbefriedigende Pausensituation der Mitarbeiter stark verbessert, indem der Pausenbereich neu definiert wurde. Der Einbau einer Küche, ein neues Beleuchtungskonzept und neues Mobiliar tragen nun zu einer gelungenen Aufenthaltsqualität bei. Die geometrischen Gegebenheiten des orthogonalen Natursteinrasters, zusammen mit einer zweischaligen Betonkonstruktion mit innenliegenden Lüftungskanälen stellten in der Planung, wie auch in der Ausführung, eine spannende Herausforderung dar. Die Arbeiten konnten innerhalb eines sehr begrenzten Kostendaches und engem Terminprogrammes erfolgreich umgesetzt werden.



Situationsplan
Erdgeschoss mit Fluchtweg
Grudnriss Detail Fluchttür
Detail Anschlagsituation Fluchttür
Ansicht Ost mit Fluchtwegausgang
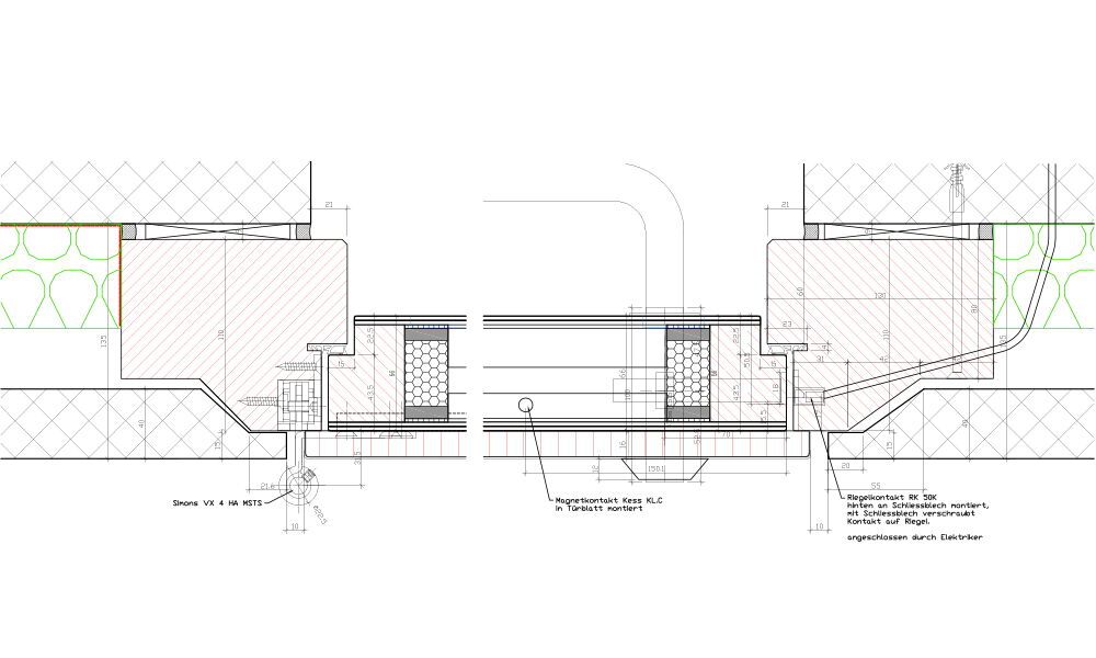
Fluchttür Detail
Modell