NEO WW – Thun

Arealentwicklung Hoffmatte, Wettbewerb 1. Rang

Südlich des Stadtkerns von Thun liegend, gehört das Areal zum eher ländlich suburban geprägten Ortsteil «Gwatt». Das Produktions- und Lagergebäude der Hoffmann-Neopac stellt für die nächsten Jahre eine räumliche Konstante dar. Die städtebauliche Strategie gründet auf den folgenden Pfeilern; «Identifikationsstiftung», «Diversität und Kohärenz», «Flexibilität und Etappierung». Dem Zweck der Identitätsstiftung werden zukünftig die Aussen- und Freiräume und die Stellung und Ausrichtung der Gebäude dienen. Der heutige nördlich der Halle liegende Freiraum wird auch in Zukunft eine wichtige Rolle spielen, er bildet das Rückgrat der Anlage. Korrespondierende Gebäudehöhen und Gestaltungsgrundsätze für Material und Farbe der Gebäude machen das Quartier ablesbar. Das neue Quartier wächst aus dem alten heraus. Ein differenziertes System an Wegen und Anbindungen vernetzt Neues mit Altem.

Die zeitliche Komponente ist aus unserer Sicht mit die Wichtigste. Der Betrachtungszeitraum ist weit und es wird in Etappen gebaut. Das heisst, dass Zwischenschritte und Zwischenstände sinnstiftend, abschliessend und für sich funktionieren müssen. Eine städtebauliche Entwicklung kann auf lange Sicht nur dann gelingen, wenn sie Spielraum lässt. Reaktionen auf veränderte Nutzungs-, Lebens- und Marktbedürfnisse müssen machbar sein und bereits heute antizipiert werden. Wichtige Qualitäten – genannt seien Nutzungen, Bauhöhen, Volumetrie, Achsen und Erschliessungen – werden definiert, um der Beliebigkeit zu entrinnen.

Der neue Quartierteil wird von unterschiedlichen Nutzern und Schichten belebt werden. Neben den Einrichtungen für Pflege und Alter machen Miet- und Eigentumswohnungen und Drittnutzungen wie KITA, Laden und Gewerbe das Gebiet zu einem attraktiven Wohn- und Lebensort.

Auftraggeber:Hoffmann Neopac AG, Frutiger AG Immobilienentwicklung, Stadt Thun
Ausblick Richtung Thunersee, Visualisierung: Maaars
Blick über den Wohlhausenweg zu den neuen Wohnhäusern, Visualisierung: Maaars
Blick über den neuen Hoffmanplatz, Visualisierung: Maaars
Blick über die Hofackerstrasse zu den neuen Wohnhäusern, Visualisierung: Maaars
Visualisierung Pflegeheim Innenhof, Visualisierung: Maaars
Modell
Modell
Modell Stand Wettbewerb
Fotografie: Goran Potkonjak
Fotografie: Goran Potkonjak
Masterplan
Nutzungen
Etappierbarkeit
Lageplan Phase I
Lageplan Phase II
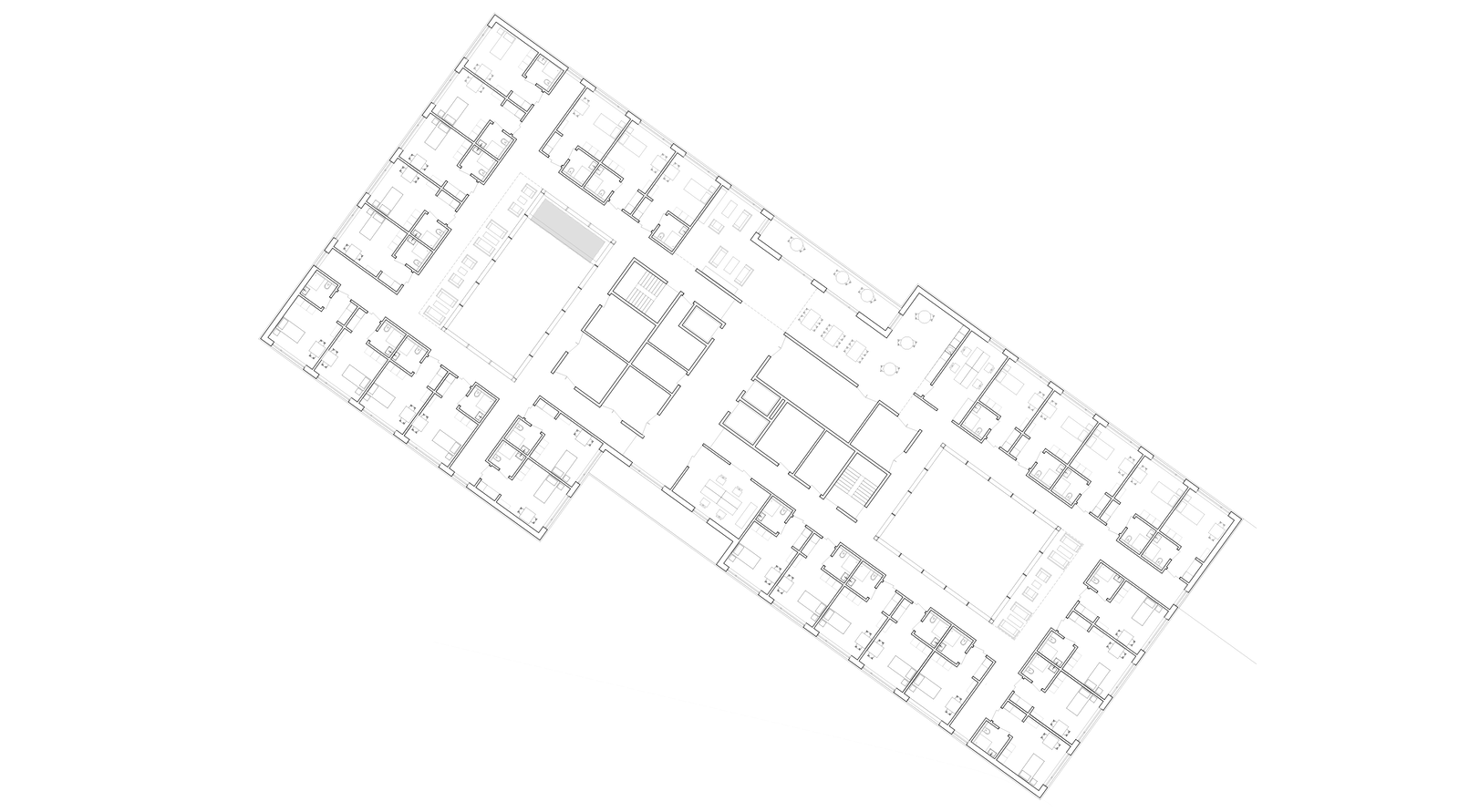
Regelgeschoss Wohngebäude A, D und I
Regelgeschoss Wohngebäude B und E
Regelgeschoss Wohngebäude C und F
Regelgeschoss Wohngebäude G
Regel- und Attikageschoss Alterswohnen
Regelgeschoss Pflegeheim
Attikageschoss Pflegeheim
Fotografie: Goran Potkonjak
Fotografie: Goran Potkonjak
Fotografie: Goran Potkonjak
Fotografie: Goran Potkonjak
Fotografie: Goran Potkonjak
Fotografie: Goran Potkonjak
Fotografie: Goran Potkonjak
Fotografie: Goran Potkonjak
Fotografie: Goran Potkonjak
Fotografie: Goran Potkonjak
Fotografie: Goran Potkonjak