OBGA – Rombach

Ersatzneubau Wohnheim Obstgarten in Rombach

Der Ersatzneubau, projektiert von Schmid Ziörjen Architektenkollektiv, steht am Hangfuss in Rombach. Das Areal befindet sich direkt an der Aare. Das Quartier im Übergang zu Aarau ist von dreigeschossigen Wohnbauten geprägt und befindet sich baulich im Wandel. Die Auswirkung der Innenentwicklung ist anhand der grösseren Wohnüberbauungen der letzten Jahre, sowohl auf Rombacher Seite, als auch angrenzend in Aarau erkennbar. Das Grundstück liegt direkt an der Grenze zwischen Siedlungs- und Landschaftsraum.

Das gegen Süden zur Aare abfallende Gelände zeichnet sich durch die besondere Lagequalität aus. Der untere Bereich liegt in der Landwirtschaftszone und wird als erweiterter Gartenraum erlebbar und genutzt werden.

Der obere Bereich, der überbaut werden kann, verfügt über eine optimale Orientierung und unverbaubaren Ausblick in die grüne Umgebung.

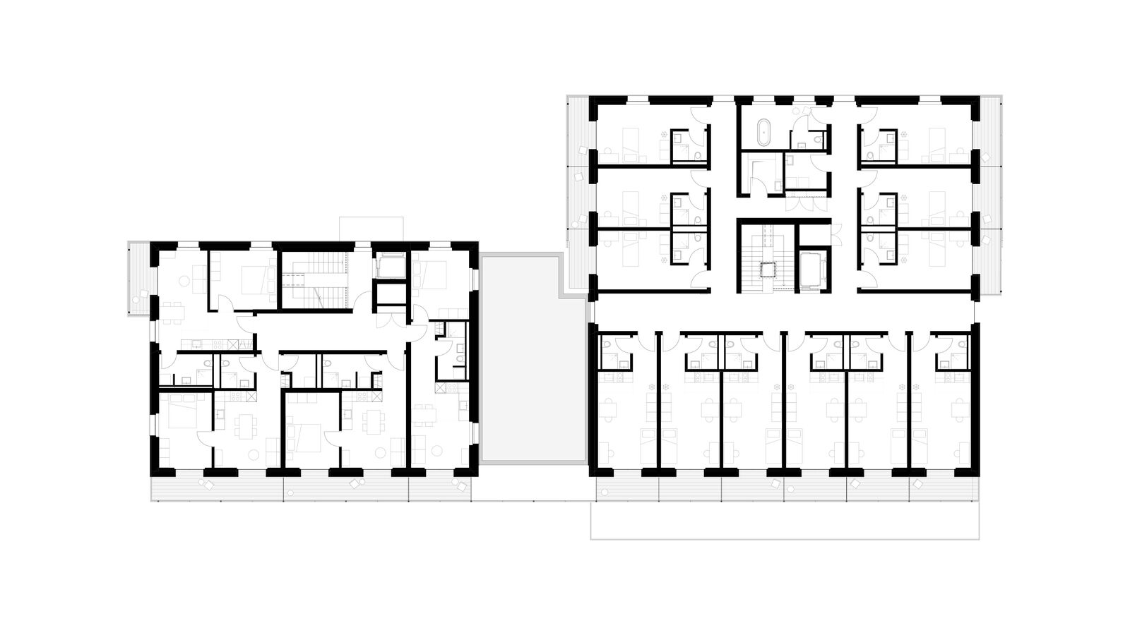
Der Ersatzneubau vereint das vielseitige Raumprogramm und passt sich den verschiedenen Massstäben des Kontextes an. Zwei rechteckige Gebäudeeinheiten werden im 1. Obergeschoss zu einem Gebäude verbunden, während im Erdgeschoss ein grosszügiger Durchgang frei bleibt. Ein zusammenhängendes Gebäude bringt aus betrieblicher Sicht Vorteile und ist für die vorgesehene Nutzung als Wohnheim nachvollziehbar. Das Raumprogramm ist dennoch kompakt angeordnet, dass der Baukörper einen vergleichsweisen geringen Fussabdruck aufweist. Die Volumetrie ist in der Höhe differenziert und im Grundriss versetzt und passt sich so der unmittelbaren Umgebung an.

Wir danken der Auftraggeberschaft Frutiger AG und dem ganzen Planungsteam für die erfolgreiche Zusammenarbeit!
 
Auftraggeber:Frutiger AG
Baustart Februar 2026 Fotograf Goran Potkonjak
Baustart Februar 2026 Fotograf Goran Potkonjak
Baustart Februar 2026 Fotograf Goran Potkonjak
Visualisierung Swiss Interactive AG
Schwarzplan
Umgebungsplan
UG
OG 1
OG 2
OG 3
Dachaufsicht
Ansicht Süd
Ansicht Ost
Ansicht Nord
Ansicht West
Schnitt A-A
Schnitt B-B
Schnitt C-C
Schnitt D-D
Schnitt E-E
Schnitt F-F